復合土工膜如何施工才能達到好的效果
來源:西藏 新疆 寧夏 四川 云南 貴州 ?? 作者:土工布廠家 ?? 瀏覽: 發布日期:2017-10-21
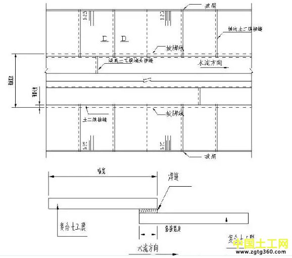
復合土工膜鋪設
(1)渠坡:沿渠軸線方向,按先下游后上游、上游幅壓下游幅的順序鋪設。鋪設時使復合土工膜幅寬與渠軸線方向平行,由坡肩自上而下滾鋪至坡腳,中間不應有縱向連接縫,渠坡上的復合土工膜只有橫向的連接縫。鋪設過程采用編織袋裝土覆壓,隨鋪隨壓,以防止復合土工膜滑移;渠底預留1m 長土工膜進行包裹防護,渠坡頂部同樣進行包裹防護,待施工路緣石時再展開。
(2)渠底:使復合土工膜幅寬與渠軸線垂直,沿渠軸線方向按先上游壓下游的順序滾鋪。渠底復合土工膜端頭縫與端頭縫、端頭縫與坡面橫向接縫應相互錯開100cm 以上。
(3)齒槽部位:鋪設齒槽部位的復合土工膜時,應松弛適度,且與齒槽貼緊,鋪設完畢后及時采用齒槽內的臨時支撐固定保溫板和土工膜。支撐約2m 左右一個,待混凝土鋪筑滿槽后再取出,清理干凈待用。復合土工膜鋪設如圖D—D所示。

- 相關文章猜你喜歡:
-
土工布廠家告訴你養護土工布怎么選劃算
需要長絲土工布生產廠家在哪里?
購買土工布量大直接找廠家批發價格節省
2019年土工布銷量預測
土工布和無紡布有什么不同如何區分
長絲土工布和短絲土工布區別
土工布具體年限壽命多長?
長絲土工布加工工藝你知道嗎?
土工布價格由哪些因素決定土工布廠家為
土工布廠家專業解答土工布是什么材料








魯公網安備37140302000591號